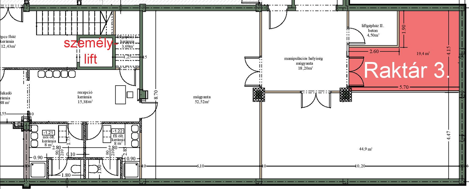
A helyiség adatai:
| Alapterület: | 19 m2 |
| Leírás: | új építésű, fűtött alagsori raktár teherlifttel |
| Bérleti díj: | 4,5 EUR/m2/hó |
| Működési ktg: | 2,5 Eur/m2/hó |
| Közös ktg: | 86 Ft/m2/hó |
Az raktár ára az Áfá-t nem tartalmazza
Kérjük, a csillaggal jelölt mezőket töltse ki!
